Hotel building drawings details 2d view floor plan AutoCAD software file
Description
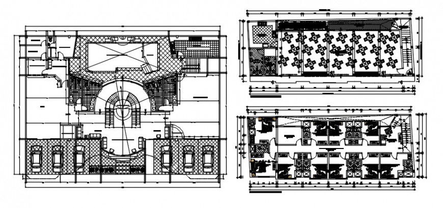
Hotel building drawings details 2d view floor plan AutoCAD software file that shows building work plan drawings details along with parking space area details and dimension hidden line details. Furniture layout with staircase floor level details also included in drawings.
Uploaded by:
Eiz
Luna

